Governo do Paraná
  • Ir para o conteúdo
  • Ir para a navegação
  • Ir para a busca
  • Acessibilidade
  • Mapa do site
Redes Sociais do Governo do Paraná
  • Instagram
  • Twitter
  • Facebook
  • Youtube
  • Tiktok
  • Linkedin
  • Whatsapp
  • Vimeo
  • Estrutura
  • Agência de Notícias
  • PIÁ
  • LGPD
  • Ouvidoria
  • Portal da Transparência
  • Pessoas Desaparecidas
  • Contraste
  • Acessível em libras

DEPARTAMENTO DE <BR />ESTRADAS DE RODAGEM Departamento de
Estradas de Rodagem

Navegação Principal DER

  • Início
  • Institucional
    • Conheça o DER/PR
    • Estrutura organizacional
    • Superintendências e Escritórios Regionais
    • História
    • Biblioteca
    • Estudos e Pesquisas Tecnológicas
    • Links de interesse
    • Intranet do DER
  • Transparência
    • Núcleo de Integridade e Compliance Setorial - NICS
    • Lei Geral de Proteção de Dados Pessoais (LGPD)
    • Documentos oficiais
    • Pagamentos de jetons
    • Repasses ou transferências de recursos
    • Extratos Conta
    • Estagiários e terceirizados
    • Transparência Temática
    • Plano Anual de Contratações - PCA
    • Atas do Conselho Diretor
    • Atas do Conselho de Administração
    • Audiências Públicas do DER/PR
    • Termo de Execução Descentralizada
  • Serviços
    • Decretos de Utilidade Pública
    • Multas de Trânsito em Rodovias Estaduais
    • GRU - Guia de Recolhimento Única
    • CND - Consulta e Emissão de Certidões
    • Licenças de Fretamento
    • AET - Autorizações Especiais de Trânsito
    • Pontos de Parada e Descanso
    • Batalhão de Polícia Rodoviária
    • eProtocolo
  • Rodovias
    • BIM
    • Banco de Projetos Rodoviários
    • Malha Rodoviária
    • Concessões Rodoviárias
    • Segurança nas Rodovias
    • Normas e Custos Rodoviários
    • Manuais
    • Meio Ambiente
    • Faixa de Domínio
    • Licitações
    • Mapa de Trafegabilidade
    • Material de apoio para Desapropriações
    • Fiscalização de velocidade
    • Obras
  • Programas
    • Agentes de Trânsito
    • Programa Estratégico de Infraestrutura e Logística de Transportes do Paraná
    • PROSEG PARANÁ - Programa de Segurança Viária das Rodovias Estaduais
    • Programa Estadual de Recuperação e Conservação de Estradas Pavimentadas
    • IntegraParaná
    • ProConserva
    • Escolas Práticas Educativas de Trânsito
    • Infrashow
    • Projeto Educar para Reciclar
  • Ferry Boat
  • Transporte de Passageiros
  • Dívida Ativa
    • Perguntas Frequentes
    • Emissão da guia
  • Infrações de Trânsito
    • Emissão de Guias e Certidões
    • Agendamento Online
    • Serviços ao Cidadão
    • GRU - Diárias Veículo Retido
    • Perguntas Frequentes
  • Fale Conosco
    • Ouvidoria
    • Registre sua manifestação
    • Consulta atendimento
    • Consultas Públicas - BID
    • Perguntas frequentes
    • Área do Prestador de Serviços

Serviços para você!

Documentos Infrações Rodovias e Travessias Transporte de Passageiros
  • Documentos
    • Cadastrar estabelecimentos aprovados como ponto de parada e descanso
    • Consultar certidões do DER/PR
    • Consultar cópias de documentos relacionados a multa de trânsito do DER
    • Consultar documentos exigidos para empresas de transporte coletivo
    • Emitir Guia de Recolhimento Única do DER/PR
    • Solicitar Autorização Especial de Trânsito - AET
    • Solicitar licenças de fretamento para transporte intermunicipal de passageiros
  • Infrações
    • Agendar atendimento presencial no DER
    • Apresentar defesa, recurso, ou solicitar advertência por escrito para auto de infração de trânsito do DER
    • Consultar cópias de documentos relacionados a multa de trânsito do DER
    • Consultar multas em rodovias estaduais ou entrar com recursos
    • Indicar condutor para auto de infração de trânsito do DER
    • Solicitar cópias de documentos relacionados a infrações de trânsito do DER/PR
  • Rodovias e Travessias
    • Cadastrar estabelecimentos aprovados como ponto de parada e descanso
    • Consultar a malha rodoviária do Paraná
    • Consultar horários e tarifas do ferry boat da Baía de Guaratuba
    • Consultar o Sistema Rodoviário Estadual do Paraná
  • Transporte de Passageiros
    • Consultar horários de ônibus intermunicipais
    • Consultar linhas de transporte intermunicipal
    • Registrar reclamação ou denúncia sobre Transporte Intermunicipal de Passageiros
    • Solicitar inclusão de cursos especializados na carteira de motorista
    • Solicitar licenças de fretamento para transporte intermunicipal de passageiros
    • Solicitar verificação de cronotacógrafo

Conteúdos relacionados a esta galeria

27/06/2023-Parceria entre Estado e município viabiliza reforma de ponte em Boa Ventura de São Roque

Parceria entre Estado e município viabiliza reforma de ponte em Boa Ventura de São Roque

Ponte do Rio Corvo em Boa Ventura de São Roque
Ponte do Rio Corvo em Boa Ventura de São Roque
Ponte do Rio Corvo em Boa Ventura de São Roque
Ponte do Rio Corvo em Boa Ventura de São Roque
Ponte do Rio Corvo em Boa Ventura de São Roque
Ponte do Rio Corvo em Boa Ventura de São Roque
Ponte do Rio Corvo em Boa Ventura de São Roque
Ponte do Rio Corvo em Boa Ventura de São Roque
Ponte do Rio Corvo em Boa Ventura de São Roque
Ponte do Rio Corvo em Boa Ventura de São Roque
Ponte do Rio Corvo em Boa Ventura de São Roque
Ponte do Rio Corvo em Boa Ventura de São Roque
Ponte do Rio Corvo em Boa Ventura de São Roque - localização
Ponte do Rio Corvo em Boa Ventura de São Roque - localização
Ponte do Rio Corvo em Boa Ventura de São Roque - localização
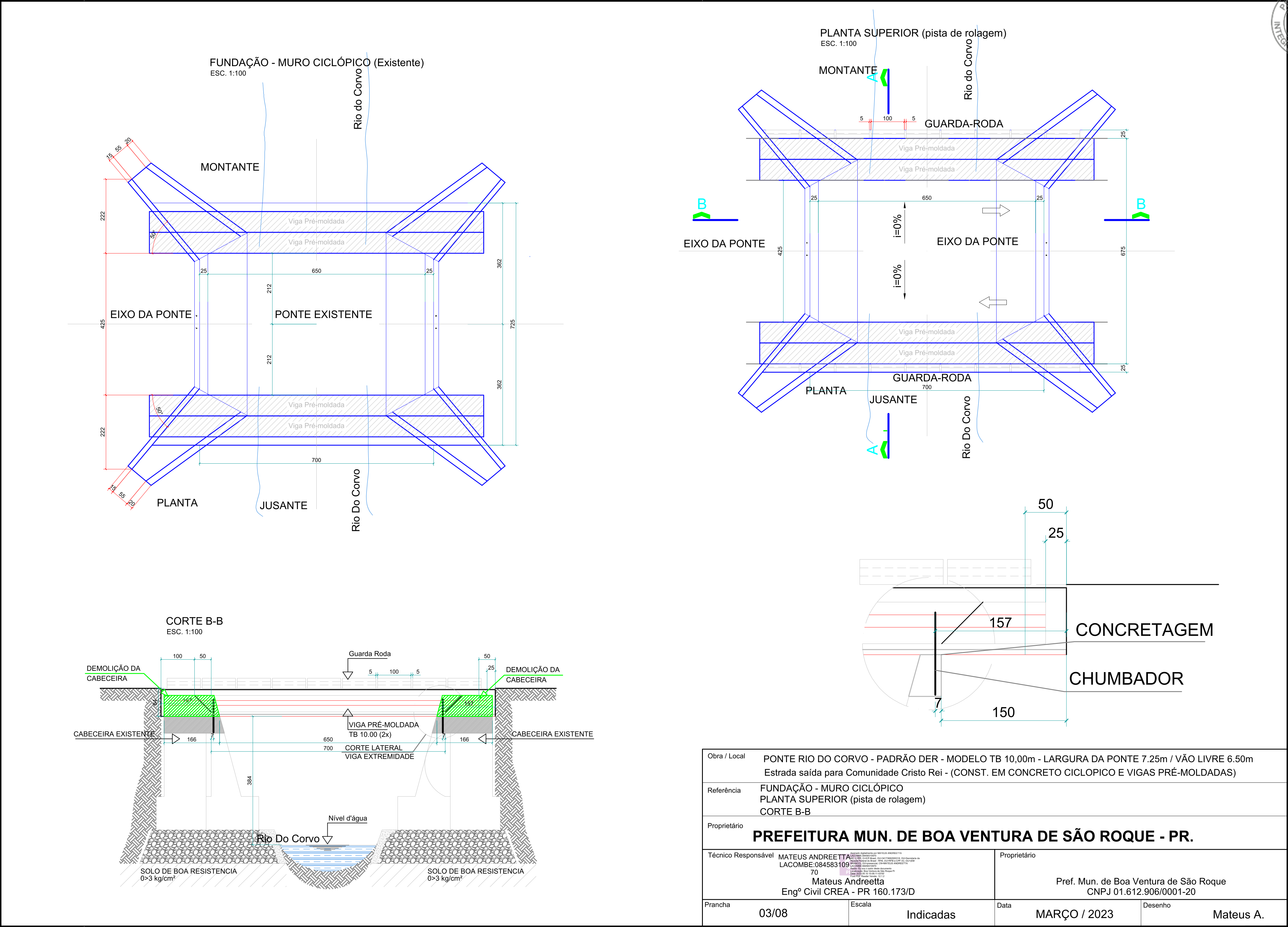
Ponte do Rio Corvo em Boa Ventura de São Roque - folha do projeto
Ponte do Rio Corvo em Boa Ventura de São Roque - folha do projeto
Ponte do Rio Corvo em Boa Ventura de São Roque - folha do projeto
Ponte do Rio Corvo em Boa Ventura de São Roque
Ponte do Rio Corvo em Boa Ventura de São Roque
Ponte do Rio Corvo em Boa Ventura de São Roque
Ponte do Rio Corvo em Boa Ventura de São Roque
Ponte do Rio Corvo em Boa Ventura de São Roque - localização
Ponte do Rio Corvo em Boa Ventura de São Roque - folha do projeto
  • Mapa do site
  • Denuncie Corrupção
  • Ouvidoria
  • Transparência Institucional

Navegação Principal DER

  • Início
  • Institucional
    • Conheça o DER/PR
    • Estrutura organizacional
    • Superintendências e Escritórios Regionais
    • História
    • Biblioteca
    • Estudos e Pesquisas Tecnológicas
    • Links de interesse
    • Intranet do DER
  • Transparência
    • Núcleo de Integridade e Compliance Setorial - NICS
    • Lei Geral de Proteção de Dados Pessoais (LGPD)
    • Documentos oficiais
    • Pagamentos de jetons
    • Repasses ou transferências de recursos
    • Extratos Conta
    • Estagiários e terceirizados
    • Transparência Temática
    • Plano Anual de Contratações - PCA
    • Atas do Conselho Diretor
    • Atas do Conselho de Administração
    • Audiências Públicas do DER/PR
    • Termo de Execução Descentralizada
  • Serviços
    • Decretos de Utilidade Pública
    • Multas de Trânsito em Rodovias Estaduais
    • GRU - Guia de Recolhimento Única
    • CND - Consulta e Emissão de Certidões
    • Licenças de Fretamento
    • AET - Autorizações Especiais de Trânsito
    • Pontos de Parada e Descanso
    • Batalhão de Polícia Rodoviária
    • eProtocolo
  • Rodovias
    • BIM
    • Banco de Projetos Rodoviários
    • Malha Rodoviária
    • Concessões Rodoviárias
    • Segurança nas Rodovias
    • Normas e Custos Rodoviários
    • Manuais
    • Meio Ambiente
    • Faixa de Domínio
    • Licitações
    • Mapa de Trafegabilidade
    • Material de apoio para Desapropriações
    • Fiscalização de velocidade
    • Obras
  • Programas
    • Agentes de Trânsito
    • Programa Estratégico de Infraestrutura e Logística de Transportes do Paraná
    • PROSEG PARANÁ - Programa de Segurança Viária das Rodovias Estaduais
    • Programa Estadual de Recuperação e Conservação de Estradas Pavimentadas
    • IntegraParaná
    • ProConserva
    • Escolas Práticas Educativas de Trânsito
    • Infrashow
    • Projeto Educar para Reciclar
  • Ferry Boat
  • Transporte de Passageiros
  • Dívida Ativa
    • Perguntas Frequentes
    • Emissão da guia
  • Infrações de Trânsito
    • Emissão de Guias e Certidões
    • Agendamento Online
    • Serviços ao Cidadão
    • GRU - Diárias Veículo Retido
    • Perguntas Frequentes
  • Fale Conosco
    • Ouvidoria
    • Registre sua manifestação
    • Consulta atendimento
    • Consultas Públicas - BID
    • Perguntas frequentes
    • Área do Prestador de Serviços
Governo do Paraná Secretaria de Infraestrutura e Logística

Departamento de Estradas de Rodagem - DER

Avenida Iguaçu, 420 - Rebouças - 80230-020 - Curitiba - PR - MAPA
41 3304-8000
Horário de atendimento: das 8h30 às 12h e das 13h30 às 18h - protocolo@der.pr.gov.br

Desenvolvido pela Celepar
Utilizamos cookies para melhorar a sua experiência neste site. Ao fechar esta mensagem sem modificar as definições do seu navegador, você concorda com a utilização deles. Saiba mais sobre cookies e nossa política de privacidade.